方案展示


設計說明
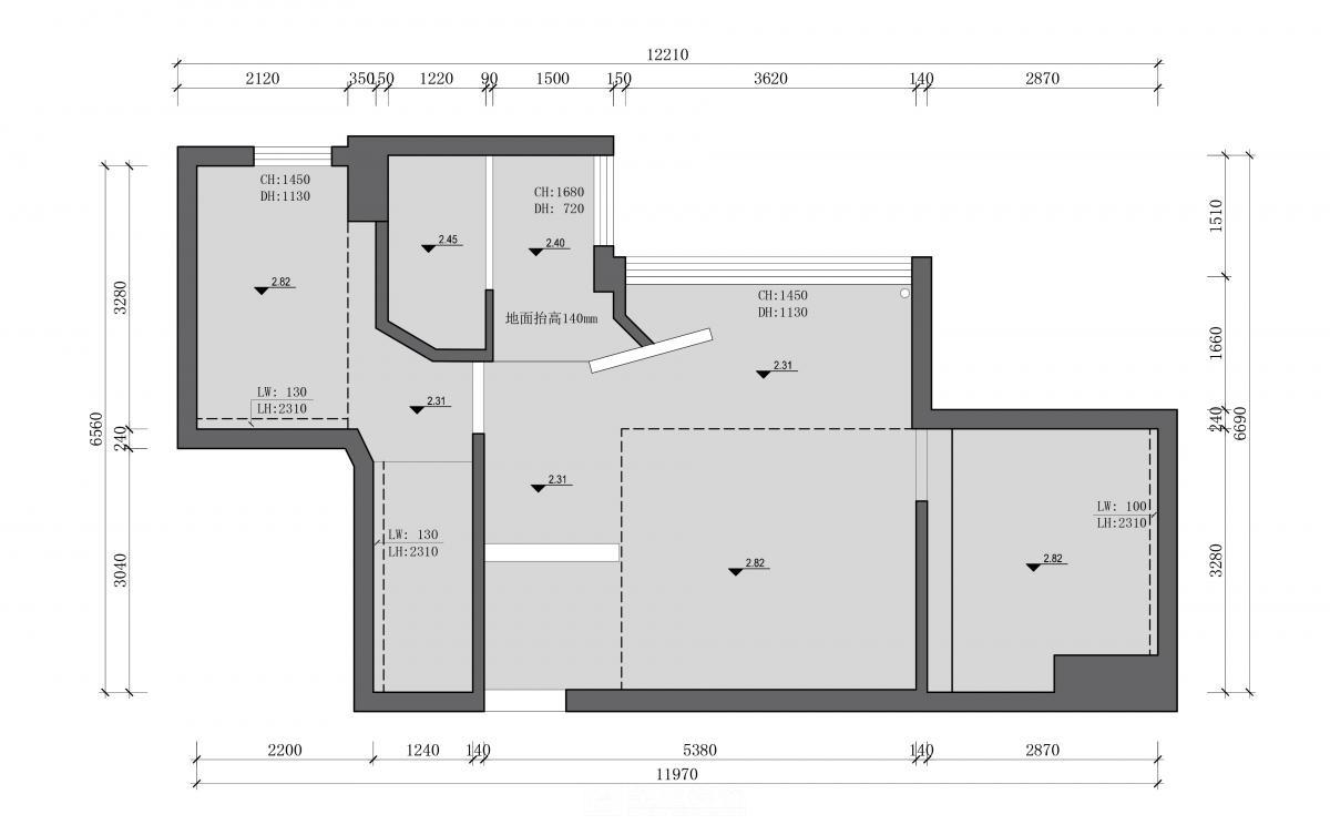
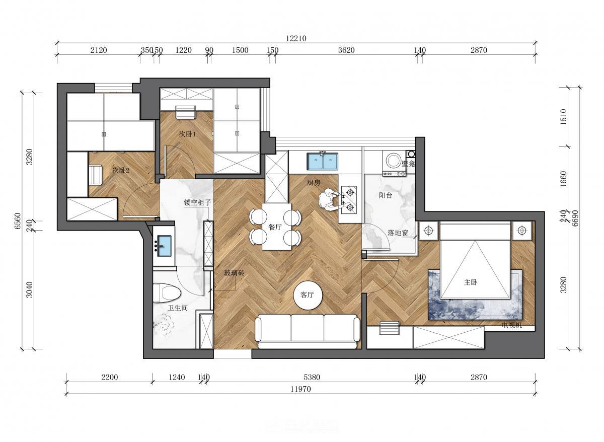
業主一家4口,要求所有房間誰都要有采光,主臥借助陽臺的光照進來,開放式廚房和陽臺緊挨,我們用玻璃隔斷阻礙油煙的味道。衛生間做了干濕分區,洗手臺外置,這樣一家人洗漱也不會擁擠。洗手臺前面坐了玻璃磚這樣光線就可以透過來,不會是一個暗的空間。客餐廳整體一個空間,客廳是不需要電視,寫作業可以在餐桌,父母坐在沙發上也是可以看到孩子的行動,安全和全家活動氛圍拉升。
[展開]-
星藝設計師的其它設計案例
-
簡約風格的其它設計案例