方案展示



















設計說明
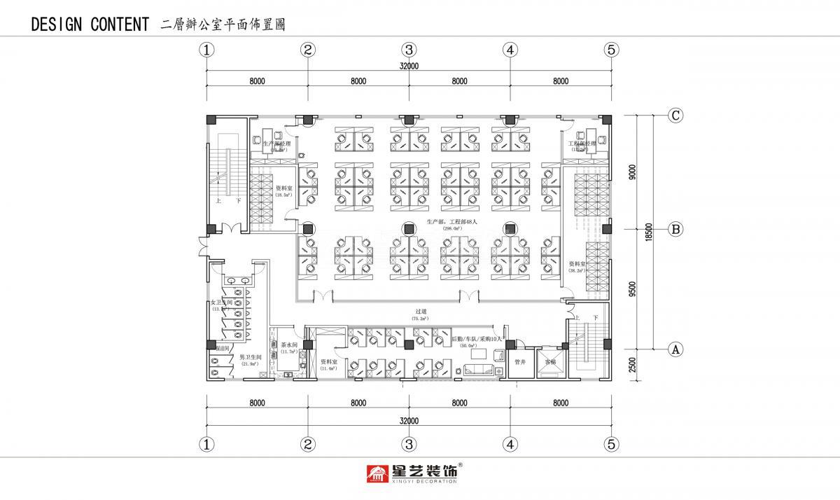
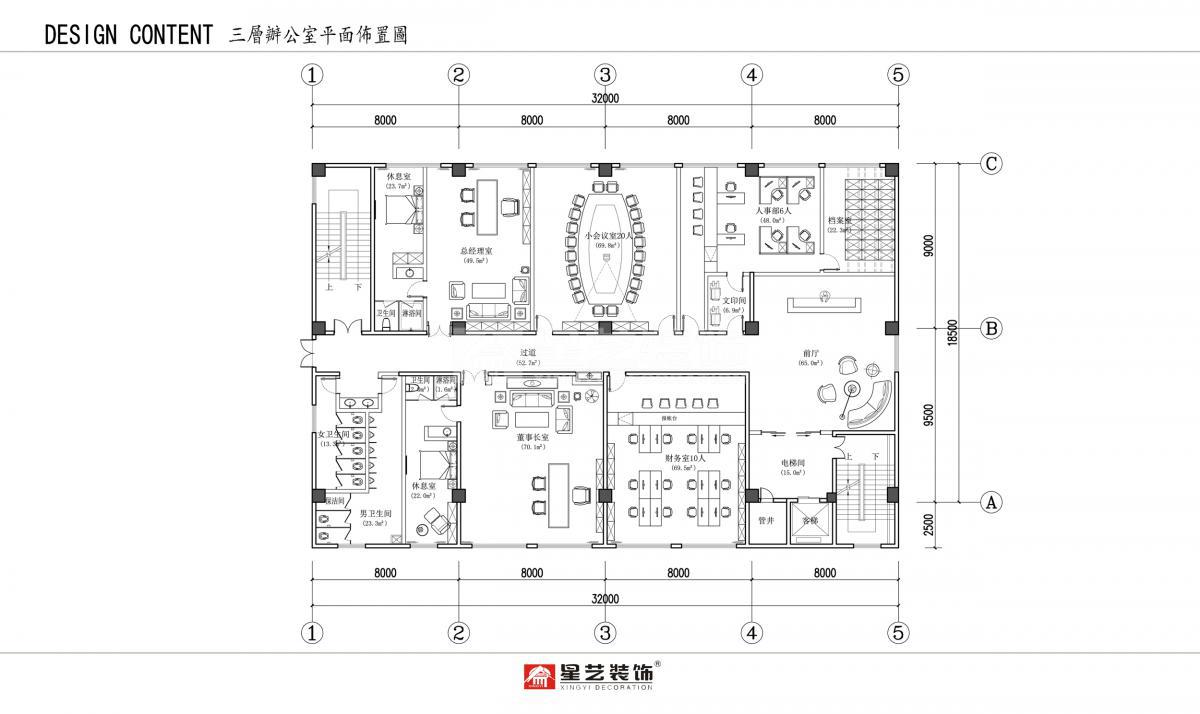
此項目為南沙一工業園的公共空間和員工宿舍,業主家里的裝修是多年前星藝給他裝修的,比較滿意,這些廠房公共區域跟員工宿舍這塊交給我們公司來做,因為是工裝項目,對材料的要求不高,在多次的溝通中,公司最終同意客戶想法,不采用公司材料,選取一些低廉的材料,從而節省了很多成本。但扇灰這塊,因為公司有一整套的施工流程,沒辦公滿足客戶對于價格的要求,只好扇灰再找其他公司做。
[展開]-
星藝設計師的其它設計案例
-
現代風格的其它設計案例